top of page
Create Your First Project
Start adding your projects to your portfolio. Click on "Manage Projects" to get started
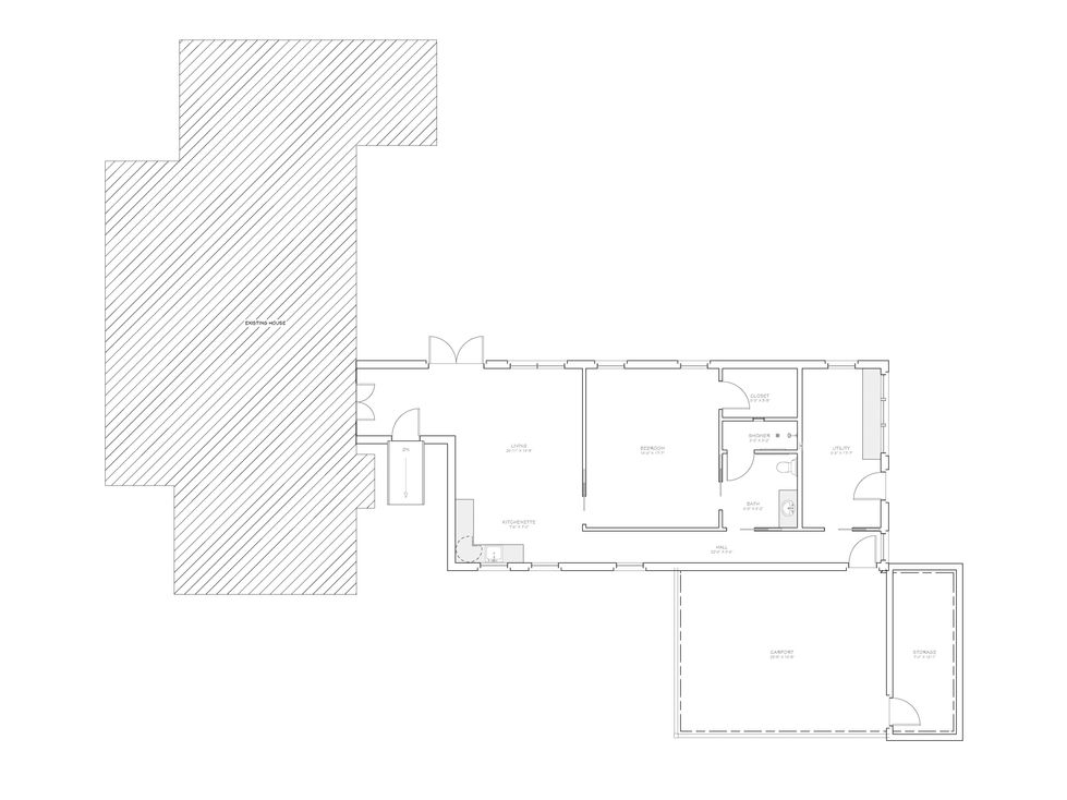
Mother-in-Law Addition
This mother-in-law addition expands the existing residence with a fully independent living suite designed for long-term family use. The addition includes a private living area, bedroom, bathroom, kitchenette, and dedicated utility and storage spaces, all connected seamlessly to the original home. The layout prioritizes privacy and functionality while maintaining clear circulation between new and existing spaces, allowing the addition to function as a comfortable, self-contained residence without compromising the original floor plan.




bottom of page




